.webp&w=3840&q=75)
A complete kitchen transformation for a passionate home baker in Potters Bar. We designed a bespoke shaker kitchen with generous workspace, accessible drawer storage, a large three-sided breakfast bar, underfloor heating and integrated wine storage.
Project Highlights
- Bespoke shaker cabinetry in grey with brushed nickel handles
- White quartz worktops throughout
- Three-sided breakfast bar with seating
- Integrated wine storage and cooler
- Built-in double ovens and American fridge freezer
- Underfloor heating throughout
- New electrics with additional sockets for baking appliances
- Under-cabinet LED lighting
- Wood-effect porcelain floor tiles
- Modern tall radiator (the dogs approve)
Before
Karen's existing kitchen featured tired wooden worktops, limited workspace and cramped storage. The layout didn't support her love of baking or entertaining, and the 1930s house needed modernising.
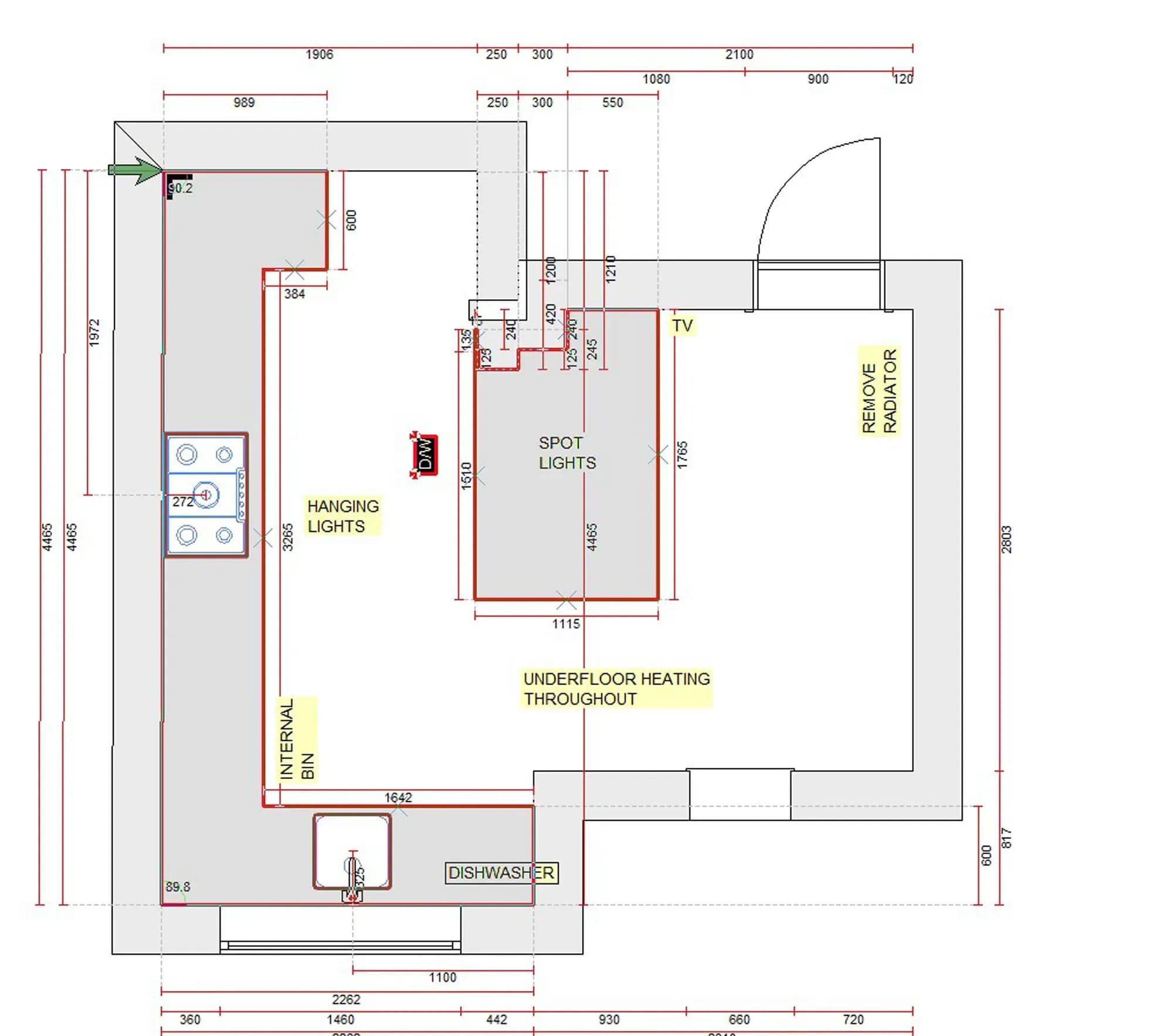
Design
Working closely with Karen, we created a detailed 3D render and technical layout plan. The design maximised workspace with deep drawers for easy access to baking items, incorporated a large breakfast bar with seating on three sides, and planned underfloor heating, spot lighting and upgraded electrics throughout.
During Build
Our team managed every aspect of the build - from stripping the old kitchen and laying underfloor heating on the concrete floor, through first-fix electrics and plumbing, to cabinet installation, floor tiling and final decoration.
The Finished Kitchen
Karen's transformed kitchen features bespoke grey shaker cabinetry, white quartz worktops, integrated wine storage, built-in double ovens, an American fridge freezer, under-cabinet lighting, and a stunning three-sided breakfast bar. The wood-effect porcelain floor tiles and modern tall radiator complete the look.
More Projects
Let's Create Your Dream Kitchen
Get in touch to arrange your home appointment

.webp&w=3840&q=75)
.webp&w=3840&q=75)